Without Prejudice

Amenities

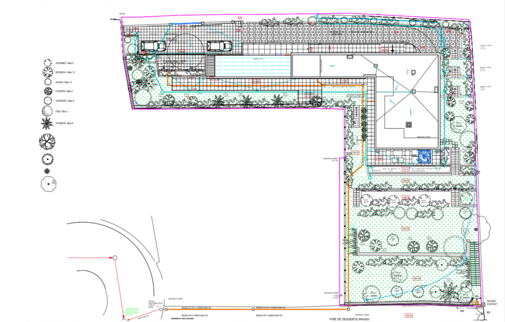
The Garden Level

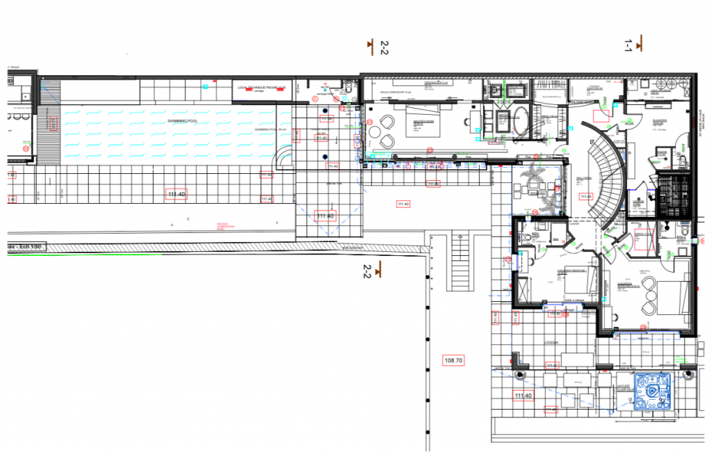
The Guest House

Plans

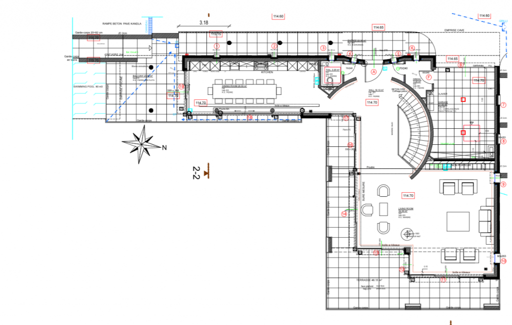
Above Public Area